Nazwa: DUSTSHAKE skrzynkowe odpylacze z oczyszczaniem wstrząsowym
Kategoria: Filtry powietrza
Producent: WAM
Opis produktu
DUSTSHAKE jest skrzynkowym filtrem wentylacyjnym do odpylania silosów napełnianych pneumatycznie z cystern. Filtr oddziela pył od strumienia powietrza za pomocą poliestrowych, kieszeniowych wkładów filtracyjnych. Pył opada swobodnie do silosu po mechanicznym potrząśnięciu wkładów filtracyjnych. Silnik elektryczny wytwarza ruch mechanizmu potrząsając kieszeniami.
Właściwości:
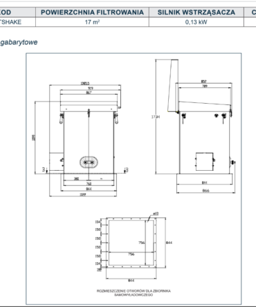
• powierzchnia filtrowania: 17m2
• solidna konstrukcja
• korpus malowany proszkowo
• górna pokrywa na zawiasach umożliwia szybką wymianę wkładów filtracyjnych
• zdejmowany panel przedni dla wygodnego przeglądu materiału filtra
• łatwa konserwacja i serwis
• sprężone powietrze nie jest wymagane (tylko zasilanie elektryczne)


